Overview

BEAUTIFULLY RENOVATED ALL BRICK HOME IN THE HEART OF DOWNTOWN NORCROSS! ALL OF THE CHARM OF THE 70'S WITH 2025 SMOOTH CEILINGS! NEW ROOF, WINDOWS, HARDWOOD FLOORS, HVAC SYSTEM TO NAME A FEW! WALK OR GOLF CART TO SHOPPING, RESTAURANTS AND PARKS! ENJOY SUMMER CONCERTS, JAZZ IN THE ALLEY, AND SPLASH ART FESTIVAL DURING SUMMER MONTHS! PARK YOUR RV, BOATS, AND OTHER TOYS IN THE DRIVEWAYS WITHOUT HAVING TO WORRY ABOUT HOA RULES!

Property Type Single family
MLS # 10597019
Year Built 1971
Parking Spots 2
Garage Attached
pattern image
225 valley Rd -01
225 valley Rd -02
pattern white image

Features

check mark icon Large Kitchen
check mark icon Open Floor Plan
check mark icon Large Lot
check mark icon Shopping Nearby
check mark icon Hardwood Floors
check mark icon Walk-In Closets
pattern white image
pattern white image

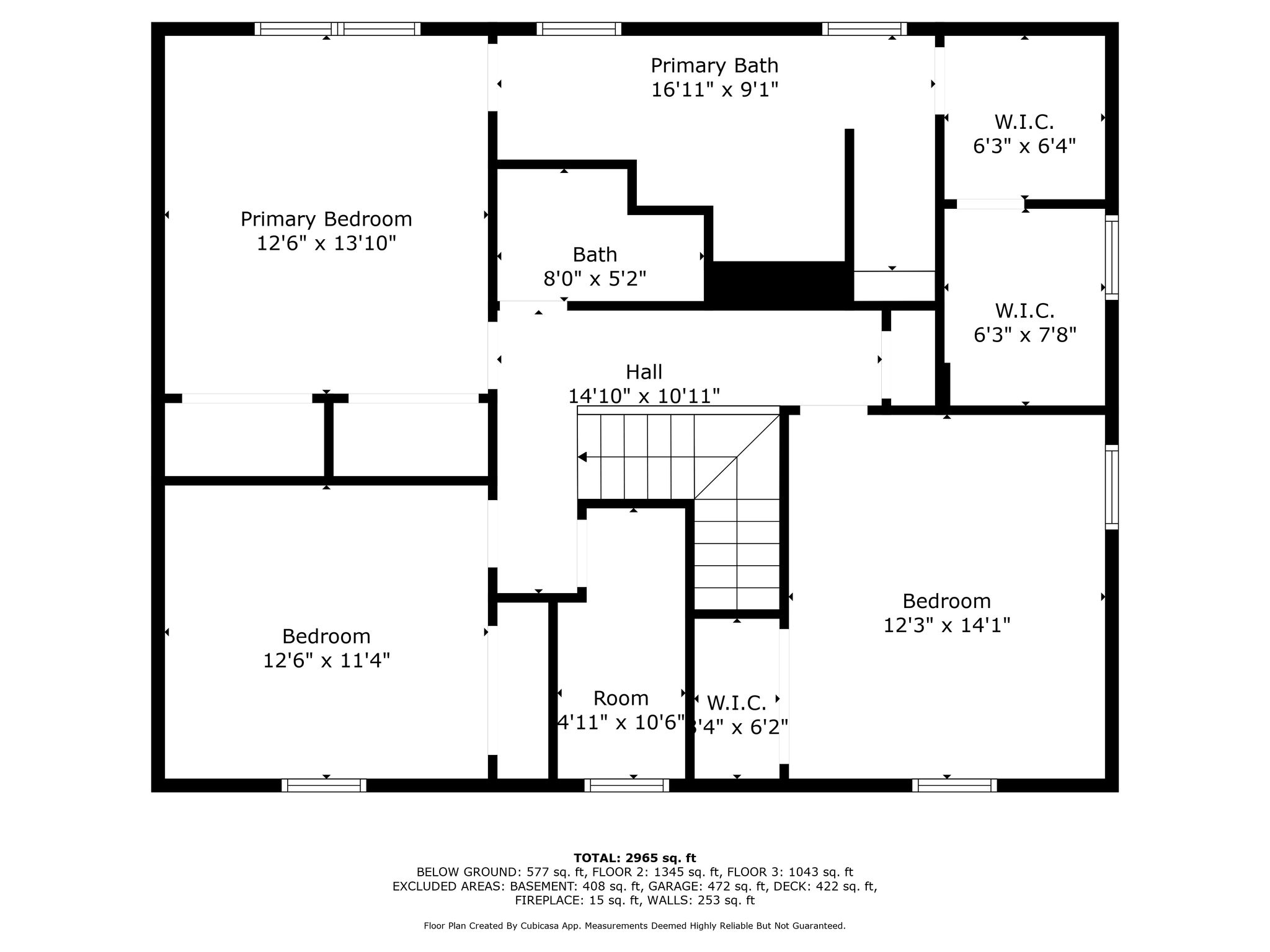
Floor Plans

pattern white image

Presented by

user headshot
Naim Harrison
Broker/Owner Kennedy Taylor Realty LLC (770) 713-0478 DRE: 252861
pattern white image

Get in touch

Thank you!

Your message is sent.

We will be in touch with you soon.

pattern image

Location

pattern image